Căn hộ Diamond Island ( Căn hộ Đảo Kim Cương ) là một khu căn hộ cao cấp tại quận 2 do chủ đầu tư Kusto Homes phát triển. Dự án có vị trí đặc biệt, tiếp giáp với ba bề giáp sông Sài Gòn và sông Giồng Ông Tố. Tổng diện tích của căn hộ Diamond Island quận 2 là 79.944m², bao gồm 6 tháp cao từ 16 đến 29 tầng, với 1.323 căn hộ cùng 222 căn officetel. Giá bán chung cư tại Diamond Island dao động từ 74.56 đến 122.75 triệu/m². Dự án đã hoàn thành trong giai đoạn từ 2016 đến 2018, thu hút nhiều cư dân sinh sống, và thị trường chuyển nhượng cũng như cho thuê đang sôi động.
Dự án căn hộ Đảo Kim Cương thể hiện sự biểu tượng tại quận 2 với nhiều tháp chủ đề được thiết kế đẳng cấp, cung cấp nhiều tiện ích chuẩn mực nghỉ dưỡng. Nó tạo ra một môi trường sống tinh tế và hoàn hảo, thu hút những người tìm kiếm sự đa dạng. Vị trí của dự án rất quý báu, như một viên ngọc giữa sông Sài Gòn và sông Giồng Ông Tố, và có lối kết nối thuận lợi đến quận trung tâm thông qua cầu Thời Đại, đường Mai Chí Thọ và đường Đồng Văn Cống.

TỔNG QUAN DỰ ÁN CĂN HỘ DIAMOND ISLAND QUẬN 2
| Tên dự án: | Diamond Island – Đảo Kim Cương |
| Loại hình: | căn hộ |
| Vị trí: | Số 1, đường số 104, phường Bình Trưng Tây, quận 2, TP Thủ Đức, TP HCM |
| Chủ đầu tư: | Kusto Home |
| Đơn vị xây dựng: | Coteccons |
| Quy mô: | 79.944m², 6 tòa tháp cao từ 16 – 29 tầng |
| Mật độ xây dựng: | 13.5% |
| Tổng sản phẩm: | 1.323 căn hộ + 222 căn hộ officetel |
| Bàn giao: | quý 4/2018 |
| Pháp lý: | sổ hồng riêng, sở hữu lâu dài, 50 năm đối với người nước ngoài |

GIÁ BÁN CĂN HỘ ĐẢO KIM CƯƠNG – DIAMOND ISLAND
Các yếu tố như diện tích, loại căn hộ, tầng, hướng view và tình trạng nội thất đều có ảnh hưởng quan trọng đến giá bán của từng căn hộ. Khả năng tùy chỉnh theo nhu cầu cá nhân giúp cư dân có sự linh hoạt trong việc chọn lựa và đảm bảo rằng mỗi căn hộ tại Diamond Island Đảo Kim Cương thể hiện một cách chính xác phong cách và sở thích riêng của từng cư dân. Sự đa dạng về giá cả và lựa chọn sản phẩm giúp Diamond Island quận 2 trở thành một sự lựa chọn hấp dẫn cho nhiều loại khách hàng.
Dưới đây là một số ví dụ về giá bán của các loại sản phẩm tại Diamond Island:
- Các căn hộ 3 phòng ngủ:
- Tháp Briliant, diện tích 180m², giá bán từ 16 tỷ đồng.
- Tháp Bora, diện tích 118m², giá bán 10.5 tỷ đồng.
- Tháp Bora, diện tích 120m², giá bán 10.8 tỷ đồng.
- Tháp Bahamas, diện tích 143m², giá bán 11.5 tỷ đồng.
- Tháp Maldives, diện tích 117m², giá bán từ 10.7 đến 12 tỷ đồng.
- Các căn hộ 2 phòng ngủ:
- Tháp Bora, diện tích 91m², giá bán từ 6.7 đến 7.2 tỷ đồng.
- Tháp Bahamas, diện tích 91m², giá bán 8.2 tỷ đồng.
HÌNH ẢNH THỰC TẾ CĂN HỘ DIAMOND ISLAND – ĐẢO KIM CƯƠNG
CHỦ ĐẦU TƯ DỰ ÁN CĂN HỘ DIAMOND ISLAND – ĐẢO KIM CƯƠNG
Công ty Kusto Home hiện là một cổ đông lớn và đầu tư dài hạn của Conteccons, sở hữu 17.55% cổ phần của công ty này. Kusto Group là một tập đoàn đầu tư dài hạn tại thị trường Việt Nam, với tổng giá trị đầu tư vào dự án lên đến 100 triệu USD trong vòng 10 năm qua. Kusto Home là thương hiệu phát triển bất động sản thuộc Kusto Group, một tập đoàn tư nhân quốc tế đa ngành có trụ sở chính tại Singapore và nguồn gốc từ Kazakhstan.
Kusto Group hoạt động tại 10 quốc gia trên toàn cầu và có sự hiện diện trong 5 lĩnh vực chính, bao gồm nông nghiệp, dầu mỏ, vật liệu xây dựng, bất động sản và bán lẻ. Tại thành phố Hồ Chí Minh, Kusto Home đã thực hiện một số dự án đáng chú ý như Diamond Island, Kosmo Tây Hồ, Urban Green và The Reflection Tây Hồ.

VỊ TRÍ DỰ ÁN CĂN HỘ DIAMOND ISLAND QUẬN 2
Dự án Diamond Island nằm giữa trung tâm thành phố, được bao bọc bởi hai dòng sông tự nhiên, sông Sài Gòn và sông Giồng Ông Tố. Vị trí này tạo điểm đặc biệt cho Diamond Island, kết hợp giữa sự sang trọng và gần gũi với thiên nhiên. Chỉ cách trung tâm sầm uất khoảng 10 phút lái xe, cư dân có thể tận hưởng cuộc sống thư giãn và riêng tư sau một ngày làm việc bận rộn tại thành phố.
Ngoài ra, Diamond Island là đảo duy nhất tại quận 2, nằm kề cận với khu đô thị mới Thủ Thiêm chỉ cách 7 phút đi xe qua cầu Thời Đại. Phía Nam của dự án giáp với Trung tâm thể dục thể thao và sân golf 18 lỗ Nam Rạch Chiếc rộng 200ha, đồng thời, có kết nối nhanh chóng với trung tâm quận 1 thông qua hầm Thủ Thiêm hoặc cầu Thủ Thiêm 2. Dự án cũng dễ dàng tiếp cận các địa điểm quan trọng của TP Thủ Đức thông qua Xa lộ Hà Nội và kết nối các tỉnh phía Đông qua Đại lộ Mai Chí Thọ và cao tốc Long Thành – Dầu Giây.
Để tiếp cận căn hộ Diamond Island từ trung tâm quận 1, cư dân có thể lựa chọn hầm Thủ Thiêm hoặc cầu Thủ Thiêm 2, sau đó di chuyển dọc theo Đại lộ Mai Chí Thọ và rẽ vào hướng cầu Thời Đại. Cầu Thời Đại là tuyến đường chính kết nối Đảo Kim Cương với trung tâm thành phố, giúp giảm thiểu thời gian di chuyển. Trước khi có cầu Thời Đại, cư dân phải đi theo tuyến Đồng Văn Cống và đường độc đạo nội khu vì các phía đều bao quanh bởi dòng sông.
Ngoài ra, dự án Diamond Island cũng hưởng lợi từ hệ thống tiện ích và dịch vụ cao cấp tại khu đô thị mới Thủ Thiêm, khu đô thị Thạnh Mỹ Lợi, khu đô thị An Phú – An Khánh, khu đô thị Nam Rạch Chiếc, cùng với các cơ sở giáo dục, y tế, trung tâm hành chính, giải trí, và nhiều công trình quan trọng khác trong khu vực. Một số ví dụ bao gồm UBND phường Bình Trưng Tây, các trường học từ tiểu học đến trung học, siêu thị Điện máy XANH Nguyễn Duy Trinh, bệnh viện Lê Văn Thịnh, trung tâm y tế dự phòng quận 2, cơ quan Công an Thành phố Thủ Đức, UBND Thành phố Thủ Đức, Khu Vui Chơi Trượt Tuyết Snow Town Sài Gòn, và bến du thuyền Novaland Bình Khánh.

TIỆN ÍCH DỰ ÁN CĂN HỘ DIAMOND ISLAND QUẬN 2
Dự án Diamond Island – Đảo Kim Cương đã dành tới 87.5% diện tích đất để phát triển không gian xanh và hệ thống tiện ích dịch vụ nội khu, nhằm đáp ứng mọi nhu cầu của các thành viên trong gia đình. Một số tiện ích nổi bật bao gồm:
- Khu vực thiên đàng cho trẻ em với Lâu đài thiên văn, công viên nước với chủ đề cướp biển, thư viện ngoài trời, Học viện âm nhạc và Nghệ thuật, hồ bơi riêng cho trẻ em có diện tích mặt nước lên đến 2.300m2, và trường mầm non quốc tế với quy mô 1.000m2. Tại căn hộ Diamond Island, các em nhỏ sẽ có cơ hội trải qua tuổi thơ đúng nghĩa, trong một môi trường tiên tiến và gần gũi với thiên nhiên.
- Cơ hội trải nghiệm cuộc sống vương giả với bến du thuyền đẳng cấp, dịch vụ taxi nước, hồ bơi Olympic dài 50m và hồ bơi resort, khu vườn BBQ, khu vườn thiền, Spa và phạm vi thể thao cao cấp. Ngoài ra, trung tâm thương mại phục vụ nhu cầu mua sắm, phòng sinh hoạt cộng đồng và nhiều tiện ích khác sẽ làm hài lòng cư dân của Diamond Island.

MẶT BẰNG DỰ ÁN CĂN HỘ DIAMOND ISLAND QUẬN 2
Dự án Diamond Island có diện tích tổng cộng 79.944m² và bao gồm 6 tháp chung cư (Bora Bora, Canary, Brilliant, Hawaii, Bahamas và Maldives), cao từ 16 đến 29 tầng, cung cấp tổng cộng 1.323 căn hộ và 222 căn hộ officetel ra thị trường. Dự án được phát triển với mật độ xây dựng thấp chỉ chiếm 13.5% diện tích tổng, trong khi diện tích còn lại (86.5%) được dành cho không gian xanh và các khu vực công cộng. Các tiện ích và các hạng mục tiện ích được phân bố rải rác trong dự án, tạo ra môi trường sống thân thiện với thiên nhiên.
Dự án Diamond Island được thiết kế bởi kiến trúc sư nổi tiếng trên toàn thế giới, Arata Isozaki, người Nhật Bản, và được quản lý bởi The Ascott – một tập đoàn quản lý căn hộ dịch vụ hàng đầu thế giới. Đảo Kim Cương được coi như một kiệt tác kết hợp giữa phong thủy và tinh thần sáng tạo của con người.

THE BRILLIANT
Tháp The Brilliant, với chiều cao từ 18 đến 26 tầng, đại diện cho sự tinh tế và ấn tượng của dự án Đảo Kim Cương. Với tổng cộng 250 căn hộ, Tháp The Brilliant cung cấp nhiều sự lựa chọn về diện tích và phòng ngủ, bao gồm căn hộ từ 1 đến 4 phòng ngủ, duplex, pool villas và sky villas, đáp ứng đa dạng nhu cầu sống của từng gia đình và cá nhân. Diện tích của các căn hộ biến đổi từ 82 đến 640m², mang lại sự linh hoạt và lựa chọn đa dạng. Tháp The Brilliant tự hào là biểu tượng của sự sang trọng và tiện nghi tại Đảo Kim Cương.

LAYOUT CĂN HỘ 1 PHÒNG NGỦ THÁP BRILLIANT

LAYOUT CĂN HỘ 2 PHÒNG NGỦ THÁP BRILLIANT
LAYOUT CĂN HỘ 3 PHÒNG NGỦ THÁP BRILLIANT
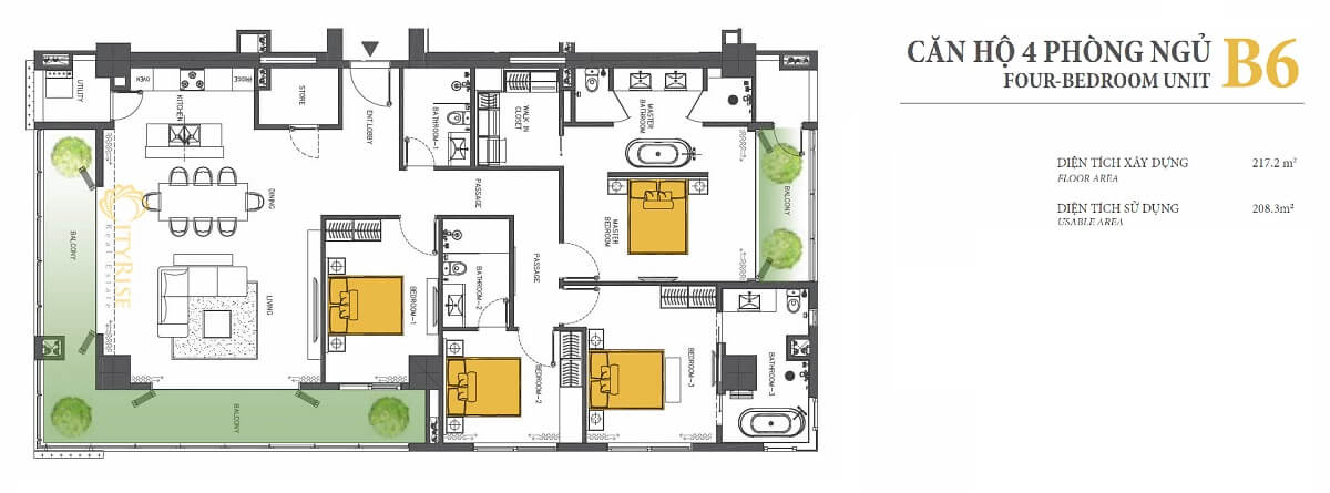
LAYOUT CĂN HỘ 4 PHÒNG NGỦ THÁP BRILLIANT

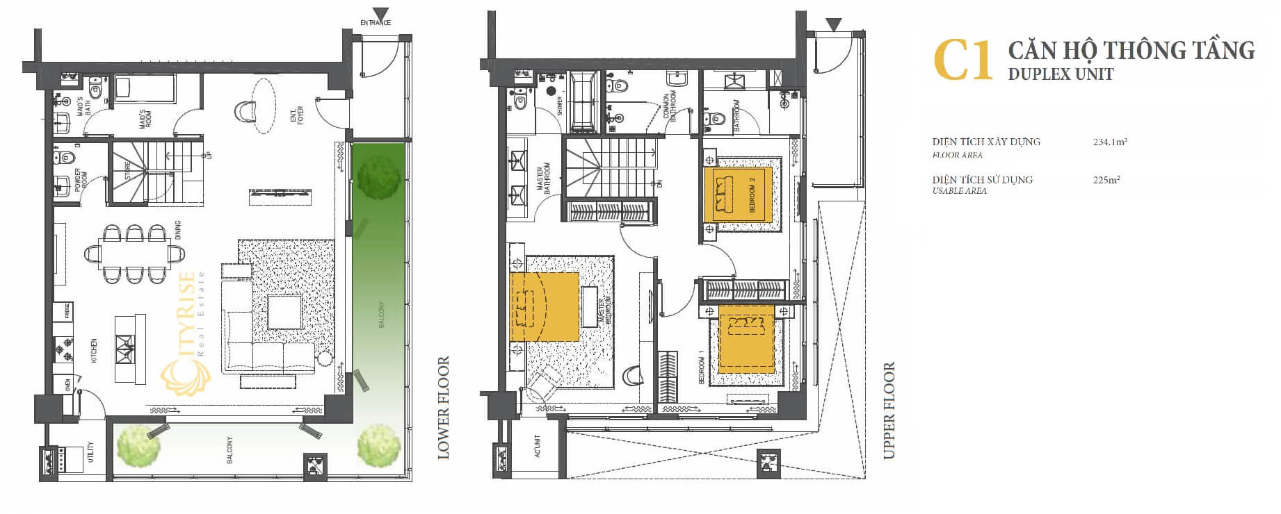
LAYOUT CĂN HỘ DUPLEX THÁP BRILLIANT

THÁP HAWAII
Tháp Hawaii nổi bật với sự kết hợp tinh tế giữa không gian nghỉ dưỡng và tinh thần năng động của Đảo Kim Cương. Vị trí độc đáo của nó mang đến tầm nhìn tuyệt đẹp, bao quát cả hai bờ sông Sài Gòn và sông Giồng Ông Tố. Tháp Hawaii tỏa sáng với hồ bơi resort rộng lớn, có diện tích lên đến 2.300m², là một phần quan trọng trong hệ thống tiện ích vượt trội, cung cấp cho cư dân nhiều lựa chọn giải trí như sân chơi, thư viện, lâu đài thiên văn, khu BBQ, và công viên nước theo chủ đề cướp biển.
Tháp Hawaii có tổng cộng 25 tầng và mang trong mình đa dạng các loại hình căn hộ, bao gồm Pool Villas, Garden Villas và Sky Villas. Diện tích của các căn hộ biến đổi từ 55 đến 450m², mang lại sự linh hoạt cho cư dân để tùy chỉnh theo nhu cầu riêng của họ. Tháp Hawaii không chỉ đơn thuần là nơi ở, mà còn là trung tâm của sự tận hưởng cuộc sống đa chiều tại Đảo Kim Cương.

LAYOUT CĂN HỘ 1 PHÒNG NGỦ THÁP HAWAII

LAYOUT CĂN HỘ 2 PHÒNG NGỦ THÁP HAWAII

LAYOUT CĂN HỘ 3 PHÒNG NGỦ THÁP HAWAII

LAYOUT CĂN HỘ POOL VILLAS THÁP HAWAII
THÁP BORA BORA
Tại Tháp Bora Bora, cư dân sẽ được trải nghiệm vẻ đẹp tuyệt vời của bình minh ngay trong không gian riêng tại ngôi nhà của họ. Tọa lạc tại Đảo Kim Cương, Tháp Bora Bora cung cấp cơ hội tuyệt vời để ngắm toàn cảnh bình minh đẹp nhất và đắm chìm trong không gian làng nước xanh mát. Nơi này còn có các tiện ích đẳng cấp như hồ bơi nghỉ dưỡng, sân tennis và sân bóng rổ.
Tháp Bora Bora gồm 29 tầng, mang đến nhiều loại căn hộ đa dạng như các căn hộ từ 1 đến 3 phòng ngủ, Pool Villas, Garden Villas và Sky Villas. Diện tích các căn hộ tùy chọn nằm trong khoảng từ 51 đến 415m², giúp cư dân tìm thấy sự lựa chọn phù hợp với phong cách sống của họ. Tháp Bora Bora không chỉ là nơi ở mà còn là biểu tượng của lối sống xanh và tinh tế tại Đảo Kim Cương.

LAYOUT CĂN HỘ 1 PHÒNG NGỦ THÁP BORA BORA

LAYOUT CĂN HỘ 2 PHÒNG NGỦ THÁP BORA BORA

LAYOUT CĂN HỘ 3 PHÒNG NGỦ THÁP BORA BORA
LAYOUT CĂN HỘ POOL VILLAS THÁP BORA BORA
THÁP BAHAMAS
Tháp Bahamas tận dụng tầm cao của 29 tầng để cung cấp một không gian tận hưởng vô tận cho những phong cách xuất sắc tại trung tâm thành phố. Với tầm nhìn mở rộ, tháp Bahamas mở ra trước mắt cảnh quan hoàn hảo của đô thị.
Tháp Bahamas cung cấp một loạt các căn hộ đa dạng, bao gồm các căn hộ từ 2 đến 4 phòng ngủ, Pool Villas, Garden Villas và Sky Villas, mỗi loại mang phong cách riêng biệt. Diện tích của các căn hộ biến đổi từ 88.75 đến 415m², tạo ra sự linh hoạt để đáp ứng mọi nhu cầu sống. Tháp Bahamas không chỉ đơn thuần là nơi ở mà còn là ngôi nhà cho những phong cách độc đáo tại Đảo Kim Cương.

LAYOUT CĂN HỘ 2 PHÒNG NGỦ THÁP BAHAMAS
LAYOUT CĂN HỘ 3 PHÒNG NGỦ THÁP BAHAMAS
LAYOUT CĂN HỘ DUAL KEY THÁP BAHAMAS

LAYOUT CĂN HỘ DUPLEX THÁP BAHAMAS

LAYOUT CĂN HỘ POOL VILLAS THÁP BAHAMAS
LAYOUT CĂN HỘ SKY VILLAS THÁP BAHAMAS
LAYOUT CĂN HỘ VILLAS THÁP BAHAMAS
THÁP MALDIVES
Tháp Maldives, với tòa nhà cao 29 tầng, mang đến trải nghiệm nghỉ dưỡng hoàn hảo tại Đảo Kim Cương. Với sự đa dạng trong loại hình sản phẩm, từ căn hộ 1-4 phòng ngủ, cùng với Pool Villas, Garden Villas và Sky Villas, Tháp Maldives tạo ra một loạt lựa chọn phong phú cho mọi phong cách sống. Diện tích của các căn hộ biến đổi từ 54.95 đến 434.18 m², tạo ra một không gian mơ ước tại Đảo Kim Cương, nơi mà bạn có thể thả mình vào vẻ đẹp tuyệt vời.

LAYOUT CĂN HỘ 1 PHÒNG NGỦ THÁP MALDIVES

LAYOUT CĂN HỘ 2 PHÒNG NGỦ THÁP MALDIVES
LAYOUT CĂN HỘ 3 PHÒNG NGỦ THÁP MALDIVES
LAYOUT CĂN HỘ 4 PHÒNG NGỦ THÁP MALDIVES

LAYOUT CĂN HỘ DUAL KEY THÁP MALDIVES

LAYOUT CĂN HỘ DUPLEX THÁP MALDIVES

LAYOUT CĂN HỘ POOL VILLAS THÁP MALDIVES
LAYOUT CĂN HỘ GARDEN VILLAS THÁP MALDIVES
THÁP CANARY
Tháp Canary là tháp được triển khai cuối cùng của dự án Diamond Island. Tháp Canary được xem là tòa tháp biểu tượng của dự án, nằm tại mũi kim cương đắc địa.
- Mặt bằng tầng 2 và từ tầng 18 trở lên
- Mặt bằng tầng 3 đến tầng 17
LAYOUT CĂN HỘ 1 PHÒNG NGỦ THÁP CANARY
LAYOUT CĂN HỘ 2 PHÒNG NGỦ THÁP CANARY
LAYOUT CĂN HỘ 3 PHÒNG NGỦ THÁP CANARY
Để biết thêm chi tiết vui lòng liên hệ Hotline: 0901 689 499























































































